Data sheet voor Montini MR Zinc 1.7 Compact

Model 2011-2025 Europe EN

Deze datasheet (PDF) zal naar uw inbox worden verzonden nadat u uw e-mailadres heeft opgegeven.

  • de originele data sheet van de fabrikant
  • meer informatie
  • gedetailleerde specificaties

*Voorwaarden

The privacy policy of the company LECTURA GmbH applies, which also contains further information about possibilities for correction, deletion and blocking of my data.

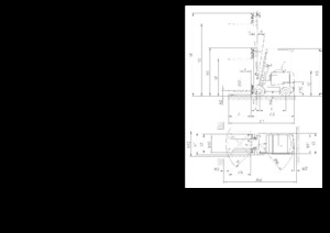
Elektrische vorkheftrucks Montini MR Zinc 1.7 Compact



gedetailleerde specificatie tonen